Unit 1, 34 Bundock Street, Belgian Gardens, QLD
13 Photos
Sold
13 Photos
+9
UNDER CONTRACT: Apartment Number One in so many ways
Property ID: 228217
For enquires please call agent direct on 0417 516 998, or submit an email enquiry below.
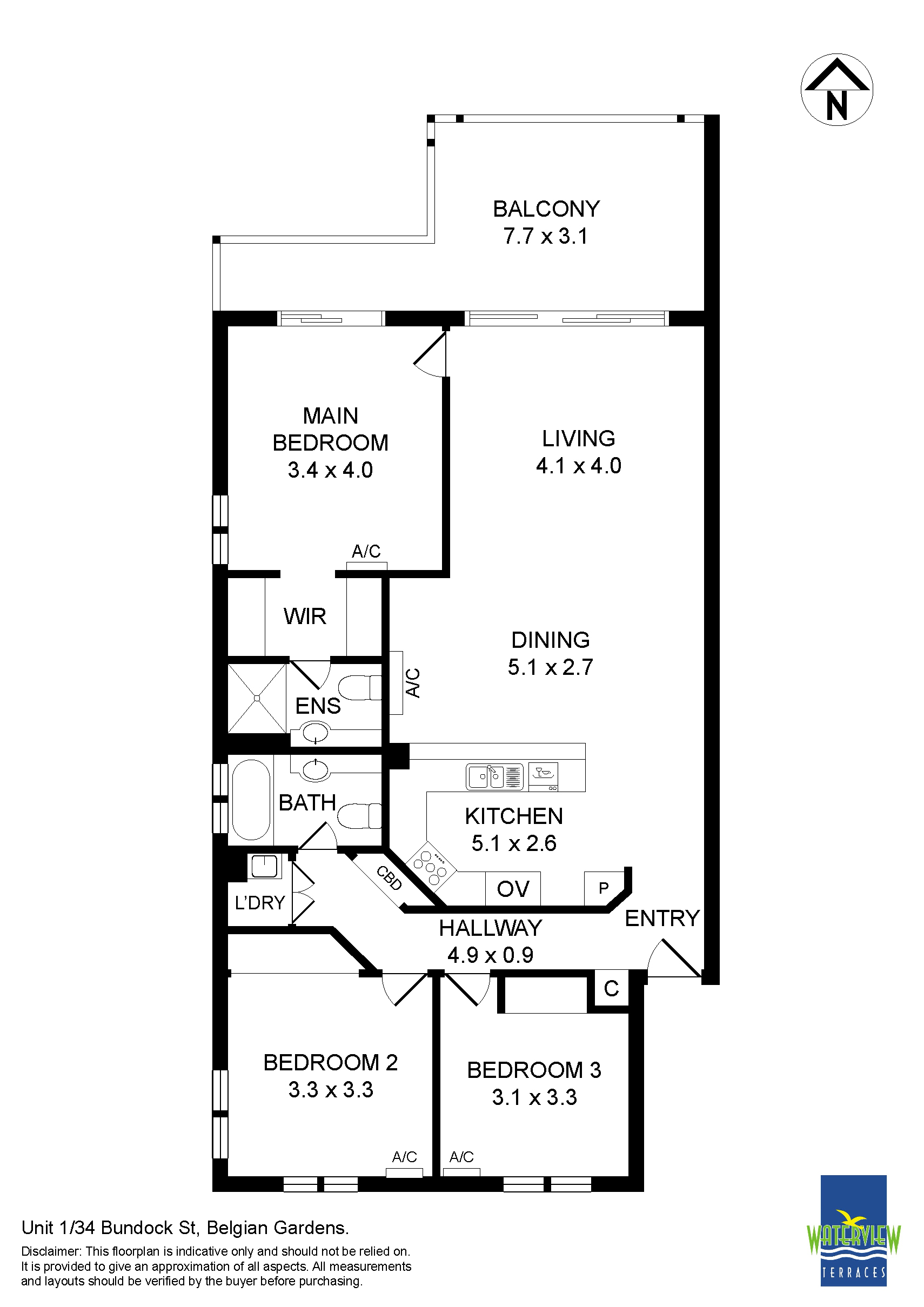
Unit One in Waterview Terraces, a spectacular apartment complex in Townsville's highly sought Belgian Gardens, has so much to recommend. Just a few short meters in from the complex entrance, is the small undercover carpark, catering for just the residents in Block A. Up a short flight of steps into the apartment, you will enjoy one of the easiest and fastest access from car to home that exist here at Waterview! Displaying the typical layout of most 3-bedroom apartments here, Unit One has had a complete re-paint along with some other upgrades. A wide balcony area overlooks the old putting green with grass and garden surrounds. Inside, three bedrooms all with mirrored robes, two bathrooms, and an open plan living area off the practical kitchen that opens to the balcony. Plus, there is a double linen cupboard, European style laundry with trough, and room for a washing machine and dryer, ceiling fans, large split system aircon and smaller aircons in bedrooms. Waterview Terraces is a stunning apartment complex. Under new management, with a waterfall "infinity" style pool, tennis court, gazebos and open garden area, Waterview is one of the best places to live in Townsville.
Unit One in Waterview Terraces, a spectacular apartment complex in Townsville's highly sought Belgian Gardens, has so much to recommend. Just a few short meters in from the complex entrance, is the small undercover carpark, catering for just the residents in Block A. Up a short flight of steps into the apartment, you will enjoy one of the easiest and fastest access from car to home that exist here at Waterview! Displaying the typical layout of most 3-bedroom apartments here, Unit One has had a complete re-paint along with some other upgrades. A wide balcony area overlooks the old putting green with grass and garden surrounds. Inside, three bedrooms all with mirrored robes, two bathrooms, and an open plan living area off the practical kitchen that opens to the balcony. Plus, there is a double linen cupboard, European style laundry with trough, and room for a washing machine and dryer, ceiling fans, large split system aircon and smaller aircons in bedrooms. Waterview Terraces is a stunning apartment complex. Under new management, with a waterfall "infinity" style pool, tennis court, gazebos and open garden area, Waterview is one of the best places to live in Townsville.
Features
Outdoor features
Swimming pool
Balcony
Indoor features
Balcony
Ensuite
Dishwasher
Built-in robes
Air conditioning
Heating
For real estate agents
Please note that you are in breach of Privacy Laws and the Terms and Conditions of Usage of our site, if you contact a buymyplace Vendor with the intention to solicit business i.e. You cannot contact any of our advertisers other than with the intention to purchase their property. If you contact an advertiser with any other purposes, you are also in breach of The SPAM and Privacy Act where you are "Soliciting business from online information produced for another intended purpose". If you believe you have a buyer for our vendor, we kindly request that you direct your buyer to the buymyplace.com.au website or refer them through buymyplace.com.au by calling 1300 003 726. Please note, our vendors are aware that they do not need to, nor should they, sign any real estate agent contracts in the promise that they will be introduced to a buyer. (Terms & Conditions).




